Zum Inhalt springen
Modelle
Modell MK I
Modell MK II
Modell MK I – DRIFT
Zielgruppen
Aussteiger & Downshifter
Senioren & Pflegebedürftige
Hoteliers & FeWo-Betreiber
Soldaten & Pendler
Studenten
Bootseigner
Investoren & Projektentwickler
Städte & Kommunen
Preise und Finanzierung
Projekt starten
Kontakt
Über uns
Modelle
Modell MK I
Modell MK II
Modell MK I – DRIFT
Zielgruppen
Aussteiger & Downshifter
Senioren & Pflegebedürftige
Hoteliers & FeWo-Betreiber
Soldaten & Pendler
Studenten
Bootseigner
Investoren & Projektentwickler
Städte & Kommunen
Preise und Finanzierung
Projekt starten
Kontakt
Über uns
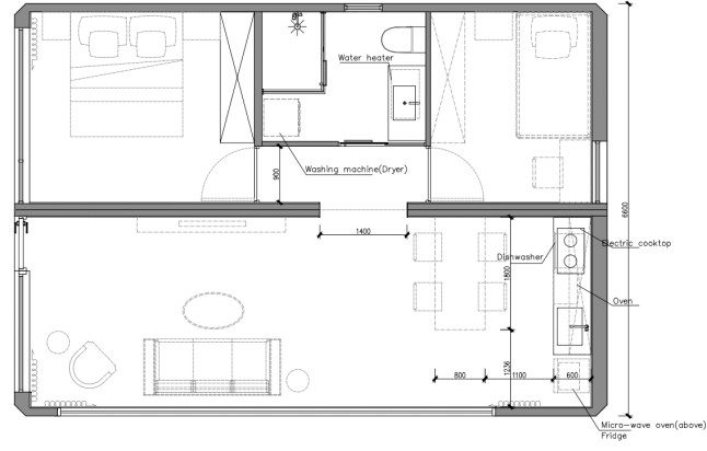
Model MK II
Der vollwertige Hausersatz
Aussenlänge (L)
11.400 mm
Aussenbreite (W)
6.800 mm
Aussenhöhe (H)
3.400 mm
Netto Wohnfläche
66 m²
PV Leistung / Speicher
8 kWp / 40 kWh
ca. Gewicht
16 Tonnen
Besonderheiten
schlüssel- und anschlussfertig gemäß GEG
sofort aufstellbar (Fundament bauseits notwendig)
Smart-Home-Funktionen
Drei Zonen Klimaanlage
Bad mit Dusche und Waschtrockner
Fußbodenheizung
Entertainmentpaket mit HD Beamer
Wohnküche mit Küchenzeile
Zwei Schlafabteile mit Einbauschränken
grosse Terrasse
PV-Anlage 8 kWp
40 kWh Batteriespeicher